Diese großzügige 5-Zimmer-Maisonettewohnung erstreckt sich über drei Ebenen und bietet dank ihres separaten Hauseingangs ein ausgeprägtes Haus-im-Haus-Gefühl. Die Wohnung überzeugt durch ihre durchdachte Raumaufteilung, helle Zimmer und vielseitige Nutzungsmöglichkeiten – ideal für Paare, Familien oder das Arbeiten im Homeoffice.
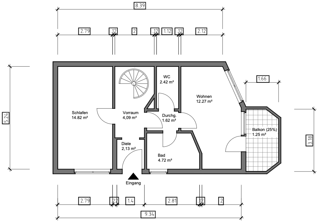
Im Erdgeschoss befinden sich der einladende Eingangsbereich, ein Gäste-WC sowie ein Badezimmer mit Dusche und Badewanne. Ergänzt wird diese Ebene durch zwei gut geschnittene Zimmer, die sich flexibel als Schlaf-, Kinder- oder Arbeitszimmer nutzen lassen. Von einem der Zimmer aus besteht Zugang zu einem Balkon, der zusätzlichen privaten Freiraum bietet.
Das Obergeschoss beherbergt einen Wohn- und Essbereich, eine separate Küche mit Fenster, ein weiteres Badezimmer mit Dusche sowie Anschlüsse für Waschmaschine und Trockner. Zusätzlich stehen hier eine praktische Abstellkammer sowie ein weiteres Zimmer mit Fenster zur Verfügung, das sich ideal als Arbeits- oder Gästezimmer eignet.
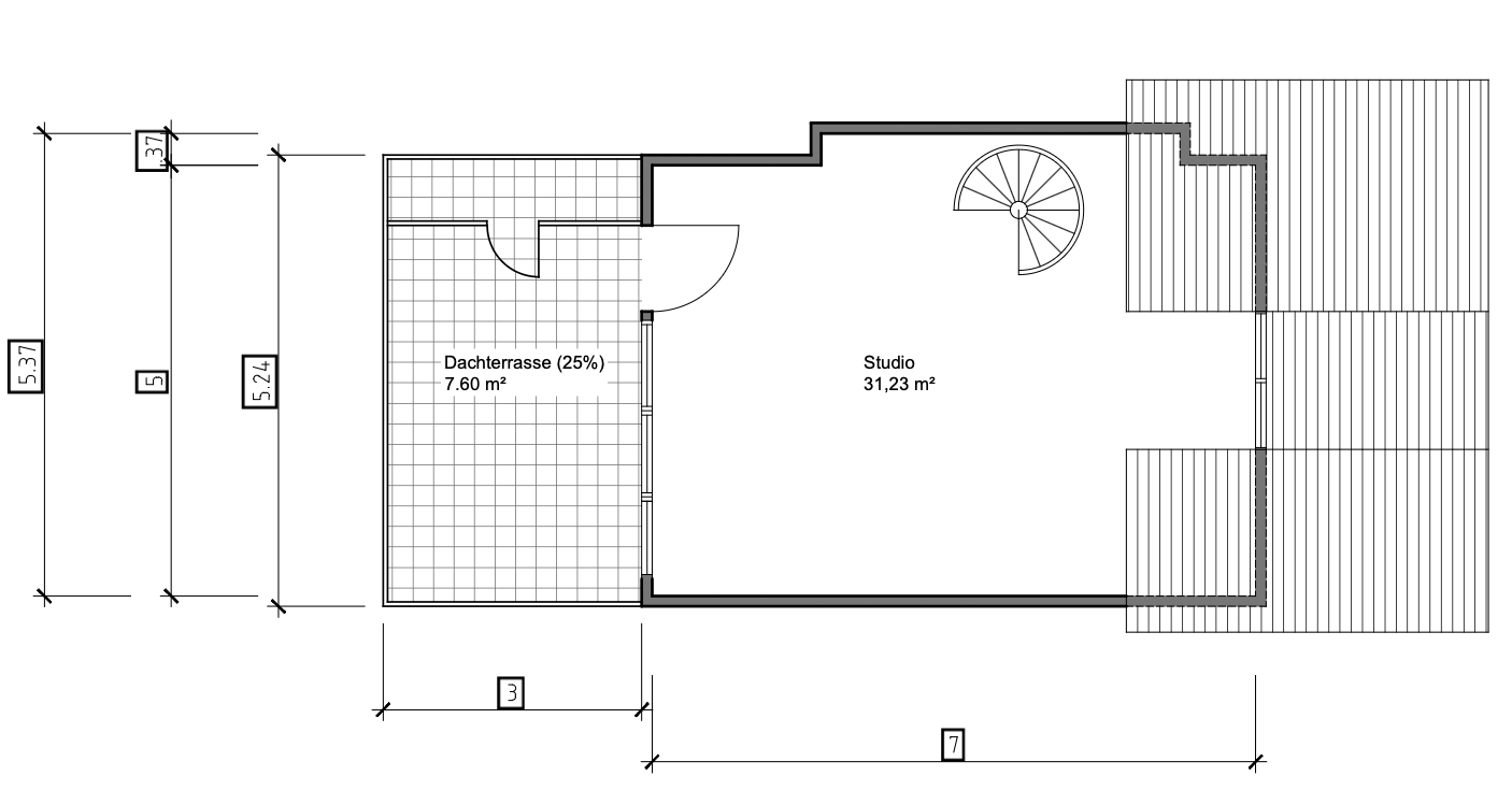
Der zentrale Wohnbereich der Wohnung befindet sich im Dachgeschoss. Das großzügige Studio mit sichtbarer Holzdecke und offener Gestaltung eignet sich hervorragend als Hauptwohn- und Lebensraum. Von hier aus eröffnet sich ein weiter Ausblick über Böblingen, der dem Raum eine besondere Wohnqualität verleiht. Der direkte Zugang zur Dachterrasse schafft einen zusätzlichen Rückzugsort im Freien mit angenehmer Atmosphäre.
Zur Wohnung gehört eine sehr großzügige Garage, die aufgrund ihrer Länge auch zusätzlichen Stauraum ermöglicht und mit einer Steckdose ausgestattet ist.
Optional besteht zudem die Möglichkeit, eine weitere Garage separat zu erwerben.
Diese Immobilie richtet sich an Käufer, die großzügiges Wohnen mit besonderem Charakter schätzen und Wert auf eine individuelle Raumaufteilung legen.






















